Description

Phone Enquiry Property ID: 2812 (Quote when calling or texting)

Set on a generous 4735 m2 parcel in one of Doonan's most peaceful pockets, this unique dual occupancy property offers a rare blend of privacy, flexibility and natural beauty. Adjoining a nature reserve and bordered by a tranquil stream with waterfall, the setting is rich with bushland character and ever changing contrasts of texture, light and shade. This property presents a rare opportunity for savvy investors seeking strong returns and long term growth in a tightly held hinterland location.

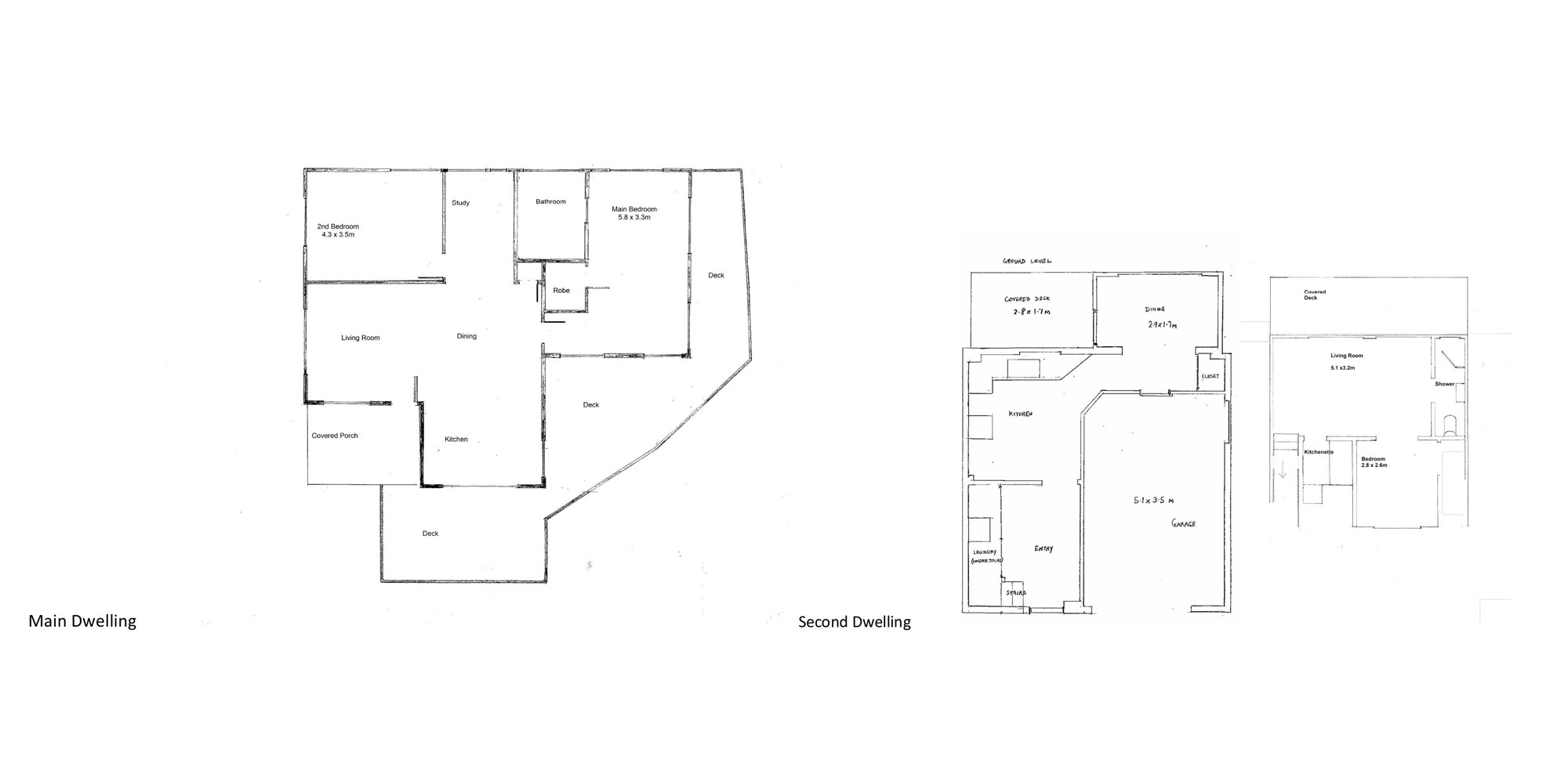
The main dwelling is a recently renovated, single-level, two bedroom home that complements the landscape with ease and comfort. A generous wrap around deck extends the living space creating a beautiful indoor outdoor connection, which is ideal for morning coffees, sunset drinks, or quiet moments immersed in nature. This residence also offers strong rental appeal in the thriving Noosa Hinterland market.

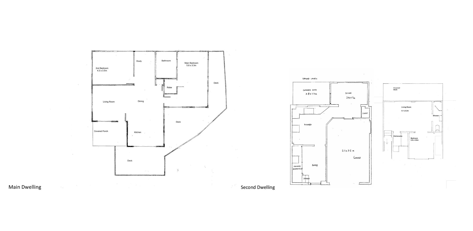
The second residence is a charming two-level, one bedroom home designed to embrace its surroundings. The living area flows seamlessly to a private balcony, creating an elevated vantage point to relax and soak in the leafy outlook and birdsong. With its own street access and private balconies on the upper and lower floors, this dwelling offers striking appeal to singles and couples looking for secluded short-term accommodation or extended family members wanting a slice of Noosa heaven.

Thoughtfully positioned to ensure separation and privacy, both homes enjoy the serenity of a bushland setting while remaining close to Doonan's lifestyle amenities. Whether you're seeking multi-generational living, guest accommodation, rental income, or a peaceful home-plus-studio retreat, this property offers outstanding versatility in an exceptional natural environment.

This is a rare opportunity to secure space, seclusion and soulful connection to nature in one of the Sunshine Coast's most desirable hinterland locations. With easy access to all that Noosa Heads, Peregian Beach, Eumundi, Yandina and Cooroy can offer. It is easy to see why this area is known by locals as Noosa Hinterland's 'golden triangle.


Inspection Times

21-Feb-2026 11:00AM to 11:40AM
28-Feb-2026 11:00AM to 11:40AM

Features

  • Airconditioning
  • Remote Garage Control
  • Secure Parking
  • Balcony
  • Deck
  • Outdoor Entertainment Area
  • Shed
  • Study
  • Floor Boards
  • Split System Air Conditioning
  • Broadband Connection
  • Built in Robes